Stammdaten Anlagebuchhaltung
Anlagenstamm
Der Anlagenstamm ist das zentrale Verzeichnis aller Anlagengüter des Mandanten. Hier werden alle Informationen hinterlegt, die zur Berechnung der Abschreibungen relevant sind.
Der Aufbau des Anlagenstammes und die gewünschte Gliederung sind vom Anwender vollständig frei gestaltbar. Zudem können für einen bestehenden Anlagenstamm eine beliebige Anzahl von Struktur-Varianten geführt werden.
Im Anlagenstamm wird auf mehrere Stammdatensätze der Anlagenbuchhaltung zugegriffen. Es ist daher sinnvoll, vor der Bearbeitung des Anlagenstammes folgende Stammdatensätze bereits zu hinterlegen:
Abschreibungen
Finanzierungsarten
Anlagekategorien
Anlagestandorte
Anlagebezeichnungen
Individuelle Anlagenzusätze
Kalkulatorische Zinsen
DataMatrix (Index) für Indexierte Abschreibung
Anlagenstamm - Toolbar
![]()
Anlagenstammspezifische Schaltflächen | |||||||||||||||||||||||||||||
[Neue Gruppe anlegen] | An der in der Baumstruktur markierten Stelle wird eine neue Gruppe eingefügt. Es können beliebig Hierarchiestufen definiert werden. | ||||||||||||||||||||||||||||
[Kopieren] | Über diese Schaltfläche öffnet sich der Dialog zur Verwaltung des Budgets auf Kontoebene (ein Konto muss dafür markiert sein). | ||||||||||||||||||||||||||||
[Sonderabschreibung] | In der Funktion Sonderabschreibung können unterschiedliche Werte für die bilanziellen und kalkulatorischen Abschreibungen angegeben werden. Folgend resultiert daraus eine kalkulatorische Abgrenzungsbuchung.
| ||||||||||||||||||||||||||||
| [Abgang] |
| ||||||||||||||||||||||||||||
| [Umbuchung] |
Hinweis: Für das Löschen von Umbuchungen die Funktion 'Umbuchungen löschen' verwenden. | ||||||||||||||||||||||||||||
| [Bewegung] | Diese Schaltfläche gibt eine Bewegungsliste der bilanziellen Buchungen des markierten Anlagenkontos aus. | ||||||||||||||||||||||||||||
| [Historie] | Zeigt alle Abschreibungsbuchungen (bilanzielle Buchungen in die Fibu, kalkulatorische Buchungen in die Bebu und individuelle Buchungen in Bewertungskreise) des markierten Anlagenkontos an. | ||||||||||||||||||||||||||||
Ausgewählte Variante […] | Über eine Dropdownliste kann die gewünschte Strukturvariante ausgewählt werden. Über die Schaltfläche […] gelangt man in die Funktion zur Verwaltung der Strukturvarianten:
| ||||||||||||||||||||||||||||
Standardschaltflächen | |||||||||||||||||||||||||||||
[Neu] | Neuen Datensatz (Konto) erfassen (Initialisierung der Erfassungsmaske) | ||||||||||||||||||||||||||||
[Speichern] | Bearbeiteten Datensatz speichern | ||||||||||||||||||||||||||||
[Verwerfen] | Änderungen am bestehenden Datensatz rückgängig machen | ||||||||||||||||||||||||||||
[Löschen] | Ausgewählten Datensatz löschen Für das Löschen von Konten gilt: | ||||||||||||||||||||||||||||
[Drucken] | Ohne Funktion | ||||||||||||||||||||||||||||
[Schließen] | Bearbeitungsmaske ohne [Speichern] oder nach [Speichern] verlassen und schließen | ||||||||||||||||||||||||||||
Anlagenstamm - Allgemeine Informationen

Funktion | Beschreibung |
Basisinformationen | |
Nummer | Anlagennummer bzw. Kurzbezeichnung der Gliederungsebene (alphanumerisches Eingabefeld, Länge max. 15 Stellen) |
Aktiv | Checkbox Bedeutet, dass die Anlage aktiv (wird abgeschrieben) oder inaktiv (wird nicht/nicht mehr abgeschrieben) ist. Hinweis: Bei einem Abgang (Vollabgang) wird der Aktiv-Status der Anlage automatisch inaktiv gestellt. |
Gruppe | Zusätzlich zu den Gruppen aus der Baumstruktur kann eine weitere Gruppierung definiert werden. |
Kategorie | Eine weiter Möglichkeit zur Klassifizierung der Anlagegüter Siehe |
Bezeichnung | Anlagebezeichnung max. 30 Stellen (alphanumerisch) |
Bezeichnung2 | Zusätzliche Bezeichnung des Anlagegutes. Diese Bezeichnung wird als eigener Stammdatensatz geführt. Somit ist sichergestellt, dass die Bezeichnung immer gleich lautet. Hinweis: Die Stammdatensätze können unter Anlagen/Stammdaten/Anlagenbezeichnungen definiert werden. |
Serien-Nummer | 19-stellig, alphanumerisch Hinweis: Die Serien-Nummer wird im Anlagespiegel mit ausgegeben. |
Versicherung | Rein informatives Betragsfeld |
Katasterwert | Rein informatives Betragsfeld |
Standort | Der Standort ist eine weitere Gruppierungsmöglichkeit der Anlagegüter. Er wird als eigener Stammdatensatz geführt und kann hier nur ausgewählt werden. |
Beschaffung | |
Datum | Datum der erstmaligen Beschaffung |
Garantieende | Datum, an welchem die Garantie endet. Hinweis: Dieses Feld ist rein informativ und hat keinen steuernden Charakter. |
Lieferant | Lieferantenname Hinweis: Das Feld ist ein alphanumerisches Eingabefeld. Eine Verknüpfung mit Kreditorenstammdaten ist zurzeit deshalb nicht möglich. |
Kaufpreis | Durch Anklicken des Button rechts neben dem Feld, wird der über die Kreditorenbuchhaltung gebuchte Wert ersichtlich. |
Heimfall | |
Datum | Datumsfeld – Anlagen gehen zu einem vorgegebenen Zeitpunkt zurück. Hinweis: Dieses Feld ist rein informativ und hat keinen steuernden Charakter. |
Entgeltlich | Checkbox Hinweis: Dieses Feld ist rein informativ und hat keinen steuernden Charakter. |
Bemerkung | Alphanumerisches Feld – z.B. zur detaillierten Beschreibung der Anlage. |
Buchwerte | |
Bilanziell | Durch Anklicken des Buttons rechts neben dem Feld wird der aktuelle bilanzielle Buchwert berechnet. |
Kalkulatorisch | Durch Anklicken des Button rechts neben dem Feld wird der aktuelle kalkulatorische Buchwert berechnet |
Anlagenstamm - Erweiterte Informationen
In diesem Register werden alle Informationen, die für die Berechnung der Abschreibung relevant sind, erfasst. Es gibt drei Bereiche: bilanzielle Verbuchung (Finanzbuchhaltung), kalkulatorische Verbuchung (Betriebsbuchhaltung) und individuelle Verbuchung (Bewertungskreis). 
Funktion | Beschreibung |
Sammelkonto | Bilanzkonten, die im Kontenplan als Anlagekonto gekennzeichnet wurden, stehen zur Auswahl. Anlagenzu- und Abgänge werden in der Folge über dieses Bilanzkonto gebucht. Hinweis: Das Feld wird inaktiv und kann nicht mehr geändert werden, sobald eine Buchung auf die Anlage gebucht wurde. |
Abschreiben ab | Datumsfeld für den Beginn der planmässigen Abschreibung. Je nach Konstellation ist für das Berechnen der ersten Abschreibung aber auch das Beschaffungsdatum (Tab 'Allg. Informationen) relevant. Verhalten wie folgt (Issue 30609, ab V. 12.1): Die Berechnung des Abschreibungsbetrages erfolgt nun IM GRUNDSATZ ab Datum "Abschreibung ab" (Ausnahme: Wenn dieses LEER ist, wird das Beschaffungsdatum verwendet). Das Beschaffungsdatum ist NUR relevant, für den Entscheid, ab wann die Anlage in die Abschreibungsberechnung einbezogen wird. Wobei für diesen Entscheid auch das Zugangsdatum berücksichtigt wird. Folgende Regel gilt dabei: - Zugang > Beschaffung: Zugangsdatum ist relevant für den Entscheid - Zugang < Beschaffung: Beschaffungsdatum ist relevant für den Entscheid |
Bilanzielle Verbuchung | |
Abschreibungsart | Mit der Zuweisung der bilanzielle Abschreibungsart wird die Abschreibungsmethode im bilanziellen Bewertungskreis (=Finanzbuchhaltung) bestimmt. Abschreibungsarten, aus den Stammdaten Anlagenbuchhaltung → Abschreibungen stehen zur Auswahl. |
Finanzierungsart | Mit der Zuweisung der Finanzierungsart wird die automatische Sonderposten-Auflösungsbuchung aktiviert, sofern Sonderpostenbuchung im Finanzierungsstamm aktiviert wurde. Andernfalls ist die Finanzierungsart rein informativ und hat keinen steuernden Charakter. Finanzierungsarten, aus den Stammdaten Anlagenbuchhaltung→ Finanzierungsarten stehen zur Auswahl. Hinweise: Die Zuweisung einer Finanzierungsart ist optional. Die Passivstellung der Sonderposten wird nicht automatisch gebucht bzw. müssen vom Anwender bei AHK-Veränderungen mit zusätzlichen Sachbuchungen gebucht werden. Einer Anlage kann genau eine Finanzierungsart zugewiesen werden. Tritt der Fall ein, dass eine Anlage zwei oder mehrere Finanzierungsarten zugewiesen werden sollten, muss ein Anlagenstamm pro Finanzierungsart eingerichtet werden und anteilsmässig AHK zu gebucht werden. Derart aufgesplittete Anlagen können im Anlagespiegel bei Bedarf verdichtet dargestellt werden. Dazu ist hier im Anlagenstamm im Strukturbaum eine Gruppe mit aktiviertem Schalter Verdichten einzurichten. Dieser Gruppe werden alle zusammengehörenden (aufgesplitteten) Anlagen zugwiesen. Der Report Anlagespiegel wird nach der entsprechenden Strukturvariante mit Verdichtung ausgegeben:
|
Fibu-Konto | G/V-Rechnungskonto, auf welches die bilanziellen Abschreibungen gebucht werden. |
Indirekte Abschreibung | Bilanzkonto, auf welches die Abschreibungen indirekt gebucht werden. Abschreibungsbuchung indirekte Abschreibung: Hinweis: Die Zuweisung eines Kontos für Indirekte Abschreibung ist optional. Wird kein Konto zugewiesen, wird die Anlage direkt über das Sammelkonto abgeschrieben. Abschreibungsbuchung direkte Abschreibung: |
Text | Buchungstext für die bilanzielle Abschreibungsbuchung |
Restnutzungsdauer | Bei der Zuweisung einer Abschreibungsart mit der Methode Linear RBW/RND wird das Feld mit der Laufzeit in Jahre aus den Stammdaten Anlagenbuchhaltung → Abschreibungen vorbelegt. Hinweis: Die Restnutzungsdauer wird pro Anlage geführt und vom Programm mit der letzten planmässigen Abschreibung im Geschäftsjahr automatisch um ein Jahr reduziert. Die Restnutzungsdauer hier im Anlagenstamm kann jedoch bei Bedarf jederzeit geändert werden. Zu beachten ist, dass sich dadurch die Abschreibungsberechnung und Buchung ändert. |
Kalkulatorische Verbuchung | |
Abschreibungsart | Mit der Zuweisung der kalkulatorischen Abschreibungsart wird die Abschreibungsmethode im kalkulatorischen Bewertungskreis (=Betriebsbuchhaltung) bestimmt. Abschreibungsarten, aus den Stammdaten Anlagenbuchhaltung → Abschreibungen stehen zur Auswahl. |
Kostenstelle/-träger | Kostenstelle oder Kostengträger, auf welches die Abschreibungen gebucht werden. |
Text | Buchungstext für die kalkulatorische Abschreibungsbuchung |
Restnutzungsdauer | Dito. Restnutzungsdauer im bilanziellen Bereich. |
| Abgrenzung-KOA | Ist eine Kostenart hinterlegt, werden Kore-Mehrabschreibungen und kalkulatorische Zinsen infolge Kore-Überabschreibungen auf diese gesonderte, hinterlegte Kostenart verbucht. Ist keine Kostenart hinterlegt, werden Kore-Mehrabschreibungen und kalkulatorische Zinsen infolge Kore-Überabschreibungen wie gewohnt auf die Kostenart gebucht, welche im Fibukonto der jeweiligen Anlage hinterlegt ist. |
| Abgrenzung-KST | Ist eine Kostenstelle hinterlegt, werden Kore-Mehrabschreibungen und kalkulatorische Zinsen infolge Kore-Überabschreibungen auf diese gesonderte, hinterlegte Kostenstelle verbucht. Ist keine Kostenstelle hinterlegt, werden Kore-Mehrabschreibungen und kalkulatorische Zinsen infolge Kore-Überabschreibungen wie gewohnt auf die Kostenstelle gebucht, welche im Anlagenstamm im Bereich "Kalkulatorische Verbuchung" im Feld "Kostenstelle/-Träger" hinterlegt ist. |
Individuelle Verbuchung | |
Abschreibungsart | Mit der Zuweisung der individuellen Abschreibungsart wird die Abschreibungsmethode im individuellen Bewertungskreis (Zusatzjournal der Finanzbuchhaltung) bestimmt. Das Zusatzjournal wird im Anlagenstammfeld Bewertungskreis der Anlage zugwiesen. Abschreibungsarten, aus den Stammdaten Anlagenbuchhaltung → Abschreibungen stehen zur Auswahl. Hinweis: Die Zuweisung einer individuellen Abschreibungsart ist optional. Durch die Zuweisung werden in das angegebene Zusatzjournal automatisch Abgrenzungsbuchungen zum bilanziellen Bewertung berechnet und gebucht. |
Fibu-Konto | G/V-Rechnungkonto, auf welches die Abschreibungs-Abgrenzungsbuchungen gebucht werden. |
Text | Buchungstext für die Abschreibungs-Abgrenzungsbuchung |
Bewertungskreis | Bewertungskreis der Finanzbuchhaltung, in welchen die Abschreibungs-Abgrenzungsbuchungen der Individuellen Abschreibung gebucht werden. |
Restnutzungsdauer | Dito. Restnutzungsdauer im bilanziellen Bereich. |
Zusatz-Informationen | |
Wiederbeschaffungswert | Die Angabe eines Wiederbeschaffungswertes ist optional. Allerdings kann die Berechnung der planmässigen Abschreibungen (siehe Stammdaten Anlagenbuchhaltung → Abschreibungen) und die kalkulatorischen Zinsen (siehe Stammdaten Anlagenbuchhaltung → Kalkulatorische Zinsen) vom Wiederbeschaffungswert definiert werden. In diesem Fall sollte hier ein Wiederbeschaffungswert erfasst werden. |
Liquidationswert | Betragsfeld (Informativ) |
Pro Memoria | Betragsfeld – wird bei der Abschreibung berücksichtigt, wenn die Abschreibung nicht unter Null definiert ist (siehe Stammdaten Anlagenbuchhaltung → Abschreibungen). Die Anlage wird auf den hier angegebenen Restbuchwert (Pro Memoria) abgeschrieben. Bitte beachten: Wird hier keinen Wert angegeben, welcher höher als der aktuelle bilanzielle Buchwert ist. Eine Warnung durch das Programm erfolgt nicht; die Differenz wird im nächsten Abschreibungslauf als negative Abschreibung (Aufwertung) zum Pro Memoria-Wert berechnet. |
Kalkulatorische Zinsart | Zuweisung einer kalkulatorischen Zinsart (Optional). Für alle Anlagen mit zugewiesener kalkulatorischer Zinsart können über das Programm Stammdaten Anlagenbuchhaltung → Kalkulatorische Zinsen die kalkulatorischen Zinsen berechnet und gemäss Kontierung im Zinsstamm (Siehe Stammdaten Anlagenbuchhaltung → Kalkulatorische Zinsen) verbucht werden. |
Projekt Nummer | Zuweisung einer Projektnummer (Optional) Wird eine Projektnummer zugewiesen, werden die kalkulatorischen Abschreibungen auch auf das zugewiesene Projekt der Betriebsbuchhaltung verbucht. Hinweis: Mit dem Button Der Eintrag wird beim Betätigen des Löschknopfes rechts daneben sofort gelöscht. Wichtig: Weder beim Erfassen noch bei einem Abschreibungslauf erfolgt das Prüfen auf Projektverbindungen. (Stand V. 12.1.5). |
Anlagenstamm - Individuelle Informationen
Im Register „Individuelle Informationen" können zusätzliche Angaben erfasst und bearbeitet werden.
Es stehen fünf Betrags- und fünf Textfelder für individuelle Eingaben zur Verfügung. In den Auswahlfenstern Combobox1 – Combobox5 können Werte aus dem Stamm „Individuelle Anlagenzusätze" ausgewählt werden.
Die Bezeichnung aller Felder kann über die Systemkonfiguration angepasst werden.
Die Individuellen Informationsfelder stehen teilweise in den Reporten der Anlagenbuchhaltung als Selektions- und/oder Gruppierungskriterium zur Verfügung.
Abschreibungen
In diesem Bearbeitungsdialog werden die Abschreibungssätze für die bilanzielle und kalkulatorische Abschreibung erfasst. Die Abschreibungssätze enthalten alle Informationen für die Berechnungsmethodik der Abschreibungen.
Die hier hinterlegten Werte werden im Anlagenstamm den einzelnen Anlagen zugeordnet und somit die planmässige Abschreibung der einzelnen Anlagegüter bestimmt.
Funktion | Beschreibung |
Nummer | Alphanumerisches Eingabefeld (Länge 5) zur Vergabe eines eindeutigen Schlüssels je Abschreibungsart. |
Bezeichnung | Bezeichnung der Abschreibungsart |
Methode | Radiobuttons für die Auswahl der Abschreibungsmethode. Die Berechnung der Abschreibung erfolgt dementsprechend: (o) Linear AHK/ND (o) Degressiv (o) Linear RBW / RND |
Anfangswert | Auswahlbox für die Auswahl des Anfangswertes für die Berechnung der Abschreibung. Anschaffungswert Wiederbeschaffungswert Versicherungswert (VW) Katasterwert (KW) Liquidationswert (LW) Anlagenstamm Wert1 (W1) Anlagenstamm Wert2 (W2) Anlagenstamm Wert3 (W3) Anlagenstamm Wert4 (W4) Als Basiswert wird der angegebene Individuelle Wert auf dem Anlagenstamm/Individuelle Informationen ermittelt. |
Indexiert | Zuweisung des gewünschten Datamatrix-Indexstamm, nach welchem aus dem Anfangswert (Anschaffungswert, Wiederbeschaffungswert) der Anlage ein indexierter Wiederbeschaffungswert berechnet wird. |
Prozentsatz | Angabe des Prozentsatzes: a) Immer bei Abschreibungsmethode 'degressiv'. b) Alternativ bei der linearen Abschreibungsmethode 'linear AHK/ND' . Dazu muss der links vom Prozentsatzfeld stehende Radiobutton zuerst aktiviert werden:
Ob Prozentsatz oder Jahre sinnvoll sind, ist in erster Linie von der Anforderung bezüglich Genauigkeit/Rundung abhängig. |
Abschreibung unter NULL | Wird diese Funktion aktiviert, dann können Anlagen auch unter Null bzw. unter den Pro Memoria Wert abgeschrieben werden. Hinweis: Eine Abschreibung unter Null macht in der Praxis in der Regel nur im kalkulatorischen Bewertungskreis für die Abschreibungsmethode 'Linear AHK/ND' der Betriebsbuchhaltung Sinn. Dies bitte beim Gestalten der Abschreibungsstammdaten berücksichtigen. |
Laufzeit in Jahren | Eingabefeld für die Laufzeit der Anlage. Das Feld ist nur bei einer linearen Abschreibungsmethode aktiv. Alternativ zu den Anzahl Jahren kann auch direkt ein Prozentsatz festgelegt werden. Siehe oben 'Prozentsatz'. Hinweis: Bei der Abschreibungsmethode 'Linear RBW/RND' kann der Wert auch bei 0 belassen werden. D.h. es reicht grundsätzlich eine einzige solche Abschreibungsart. Das gezielte Bereitstehen pro (geplante) Abschreibungsdauer hat reinen Informationscharakter; massgebend für diese Abschreibungsmethode ist die auf der einzelnen Anlage vorhandene Restnutzungsdauer. |
Buchungstext | Eingabefeld für den Buchungstext. Dieser kann bei der Buchungserstellung für Abschreibungen gemäss der Definition Einstellungen → Einstellungen Anlagenbuchhaltung via ' Abschreibungsarten-Buchungstext' angezogen werden. |
AHK-Grenzen von/bis | Eingabefelder für Grenzwerte bei den Anschaffungs-/Herstellungskosten. |
Prüfung Grenze beim Buchen | Radiobuttons für die Auswahl von Prüfregeln für die AHK-Grenzwerte beim Buchen. Beim Buchen (Sachbuchung, Kreditoren-RG und Debitoren-Rechnung) auf eine AnlageNr mit dieser Abschreibungsart wird die Unter- und Obergrenze der hier vorgenommenen Einstellung geprüft. (o) Prüfen Nein (o) Prüfen mit Meldung (o) Prüfen zwingend Beispiel: Untergrenze 150.00 Obergrenze 1000.00 Prüfung: Buchungsbetrag > 150 AND Buchungsbetrag <= 1000.00 Hinweis: In der Praxis kommt diese Prüfung für die Sicherstellung der GWG-Regeln der Geringwertigen Güter zur Anwendung. Erhält der Anwender eine Meldung bedeutet dies für ihn, dass das Gut nicht aktiviert sondern direkt in den Aufwand gebucht werden kann. |
Prüfung Beginn Abschreibung | Radiobuttons für die Auswahl von Prüfregeln für die AHK-Grenzwerte beim Erfassen einer Anlage bzw. Beginn der Abschreibung im Anlagenstamm. (o) Prüfen Nein (o) Prüfen mit Meldung (o) Prüfen zwingend |
Finanzierungsarten

Abbildung 112: Finanzierungsarten V-12.1
Die Einrichtung von Finanzierungsarten dienen dazu, einer Anlage im Anlagenstamm eine zusätzliche Information über die Finanzierung zu hinterlegen. Finanzierungsarten müssen daher nicht zwingend eingerichtet werden.
Zusätzlich kann die Finanzierungsart benutzt werden, um automatische Auflösungsverbuchung von Sonderposten mit den Abschreibungsbuchungen zu veranlassen. Es wird dabei genau der identische Betrag der Abschreibung als zusätzliche Sonderpostenauflösung gemäss hier vorgegebener Kontierung automatisch gebucht.
Hinweis: Die Passivstellung der Sonderposten wird nicht automatisch gebucht bzw. müssen vom Anwender bei AHK-Veränderungen mit zusätzlichen Sachbuchungen gebucht werden.
Einer Anlage kann genau eine Finanzierungsart zugewiesen werden. Tritt der Fall ein, dass eine Anlage zwei oder mehrere Finanzierungsarten zugewiesen werden sollten, muss im Anlagenstamm pro Finanzierungsart ein Anlagenstamm eingerichtet werden und anteilsmässig AHK zugebucht werden. Derart aufgesplittete Anlagen können im Anlagespiegel bei Bedarf verdichtet dargestellt werden. Dazu ist im Anlagenstamm im Strukturbaum eine Gruppe mit aktiviertem Schalter Verdichten einzurichten. Dieser Gruppe werden alle zusammengehörenden (aufgesplitteten) Anlagen zugwiesen.
Funktion | Beschreibung |
Nummer | Nummer der Finanzierungsart |
Bezeichnung | Bezeichnung der Finanzierungsart |
Sonderpostenbuchung aktivieren | Schalter, welcher die automatische Sonderposten-Auflösungsbuchung bei der Abschreibung aktiviert. Hinweis: Überall wo Abschreibungen in der Anlagenbuchhaltung gebucht werden können, werden die Sonderpostenauflösungsbuchungen mit dem identischen Wert der Abschreibung zusätzliche gebucht. |
Buchungstext Sonderposten | Buchungstext für die Sonderpostenauflösungsbuchung |
Abschreibungskonto | Das hier angegebene Konto wird beim Erfassen einer Anlage mit der vorliegenden Finanzierungsart als Abschreibungskonto (Aufwandkonto) vorgeschlagen. Konten der G/V-Rechnung vom Typ Aufwand und Ertrag stehen zur Auswahl. |
Sonderpostenkonto | Aktiv/Passiv-Konten für die Sonderpostenbuchungen Hinweis: Dieses Konto wird als Gegenkonto für die Sonderposten-Auflösungsbuchung anlässlich der Abschreibungsbuchung verwendet. Buchung: |
Auflösung Sonderpostenkonto | Aufwand/Ertragskonto für die Sonderpostenauflösungsbuchung Hinweis: Für die Verbuchung in die Betriebsbuchhaltung werden die Kostenarten des hier angegebenen Sachkontos aus dem Kontenplan und die Kostenstelle, welche der Anlage im Anlagestamm zugwiesen ist (also identische Kostenstelle wie für die Abschreibung) verwendet. |
Verbindlichkeiten Sonderposten | Aktiv/Passiv-Konto für die Verbindlichkeiten der Sonderpostenbuchungen Hinweis: Dieses Konto dient als Information und wird nicht für automatische Buchungen vom Programm verwendet. |
Zuführung Sonderposten (neu ab V.15.1.0.0) | Massgebend bei der Zubuchung der Anlage. Sofern 'Sonderposten-Verbuchung aktive' = ATKIV ist. Die Eingabe ist zwingend. Bei ' 'Sonderposten-Verbuchung aktive' = INaktiv: Dann kann z.B. ein Scharnierkonto angegeben werden, so dass der Eintrag gespeichert werden kann. |
Kalkulatorische Zinsen
Auf Anlagen können, müssen aber nicht, kalkulatorische Zinsen berechnet werden. Mit den 'kalkulatorischen Zinssätzen' kann die Berechnungsweise bedarfsgerecht definiert werden.
Die hier definierten kalkulatorischen Zinsen können dann auf den einzelnen Anlagen, bei welchen die Zinsen berechnet werden sollen, erfasst werden (Anlagenstamm - Erweiterte Informationen)
Das Berechnen und Verbuchen der kalkulatorischen Zinsen erfolgt über die Funktion (Lauf) Kalkulatorische Zinsen 
Funktion | Beschreibung |
|---|---|
Nummer | Alphanumerisches Eingabefeld (Länge 5) zur Vergabe eines eindeutigen Schlüssels für den kalkulatorischen Zins (pro Mandant). |
Bezeichnung | Bezeichnung des kalkulatorischen Zinses |
Prozentsatz | Interner Zinssatz |
Kostenart | Primärkostenarten stehen zur Auswahl |
Art | |
Basis | Diese Wahl der Basis ist nicht relevant für die Werte-Art 'Wiederbeschaffungswert' und 'Liquidationswert''. |
Buchungstext | Eingabefeld für den Buchungstext. |
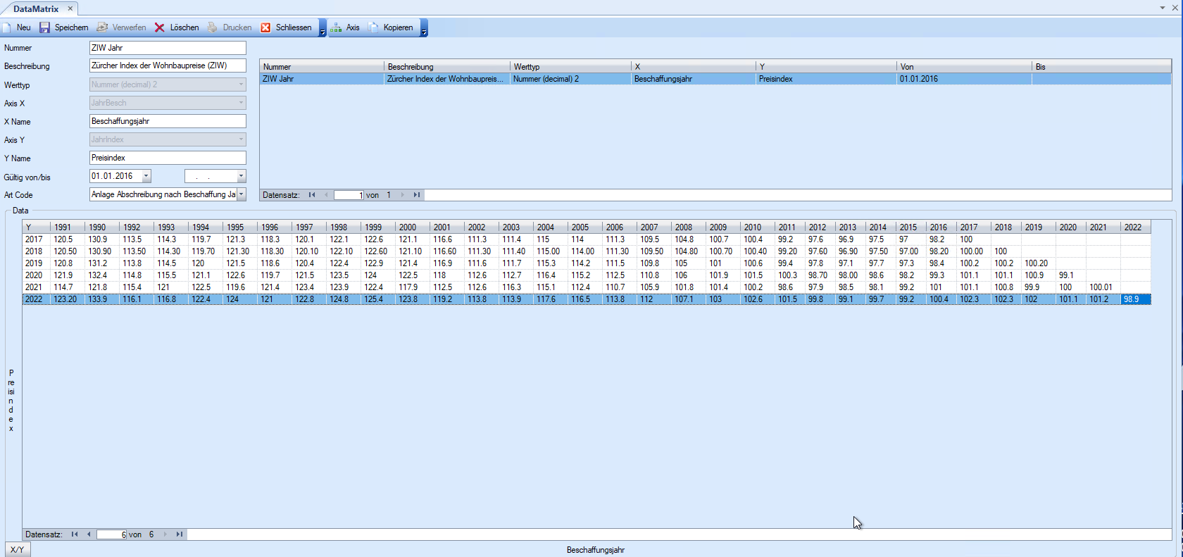
DataMatrix (Index)

Funktion | Beschreibung |
|---|---|
| Nummer | Alphanumerische Nummer unter welcher die hier gepflegten Indexe einer Abschreibungart zuweisbar ist. |
| Beschreibung | Name des Indexes |
| Werttyp | Folgende Wert-Typen stehen zur Auswahl:
Der Werttyp bestimmt den Werttyp, welcher in den Matrix-Zellen erfassbar sein sollen. |
| Axis X | X-Achse
|
| X Name | Name der X-Achse |
| Axis Y | Y-Achse
|
| Y Name | Name der Y-Achse |
| Gültig von/bis | Gültigkeit Datum-Bereich des Indexes |
| Art Code | Bestimmt wie mit dem Beschaffung-Datum aus dem Anlagenstamm auf der X-Achse auf die Daten des Indexes zugegriffen wird. Folgende Art Codes stehen zur Auswahl
|
| Data | Tabelle mit den Index-Werten gemäss X- und Y-Achsendefinition |








